Center za ravnanje z odpadki Spodnji Stari Grad – Kompostarna.
- naročnik: Občina Krško
- tip/namembnost: INDUSTRIJSKI OBJEKT
- vrsta gradnje: novogradnja
- lokacija: Center za ravnanje z odpadki Spodnji Stari Grad
- površina: 2547 m2
- projekt: 2013
- izvedba:
V novozgrajenem objektu kompostarne se bo predelava odpadkov izvajala po postopku R3 – recikliranje, pridobivanje organskih snovi, ki se ne uporabljajo kot topila (vključno s kompostiranjem ali z drugimi procesi biološkega preoblikovanja).
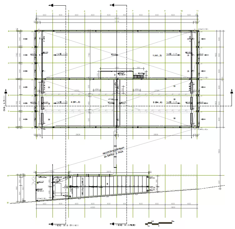
Kompostiranje biološko razgradljivih komunalnih in nekaterih drugih biološko razgradljivih odpadkov se bo izvajalo po postopku prisilnega kompostiranja, to je statične biološke obdelave v objektu dimenzij 36 x 60 m, ki bo imel 6 linij tlorisne širine 6 m in dolžine 60 m. Polovica tlorisne površine tega objekta, s tlorisno površino 18 m x 60 m, bo namenjena mehanski obdelavi odpadkov in pripravi komposta za odpremo in sicer bo področje A1 namenjeno skladiščenju bioloških odpadkov in komposta, A2 predstavlja transportno pot in področje manipulacije, na področju A3 bosta locirana bobnasta sita in na podestu nad siti bo montirano 6 kosov ventilatorjev za dovajanje zraka v kompostne kupe ter elektro krmilna oprema kompostarne. Druga polovica tlorisne površine tega objekta bo zaradi saržnega postopka kompostiranja razdeljena na 6 boksov tlorisne površine 6 m x 30 m ( B1 do B6), kar bo omogočalo časovno ločeno kompostiranje biološko razgradljive frakcije komunalnih odpadkov in nekaterih drugih biorazgradljivih odpadkov.
V projektni nalogi so bili obravnavani:– postopek prisilnega kompostiranja– osnovna regulacija vpihovanja– fizikalne lastnosti– produkt reakcij kompostiranja– biofilter









