1. »
  2. »
  3. » Projekti
  4. » Industrijske stavbe

Steklarska delavnica Resnik

Nazaj

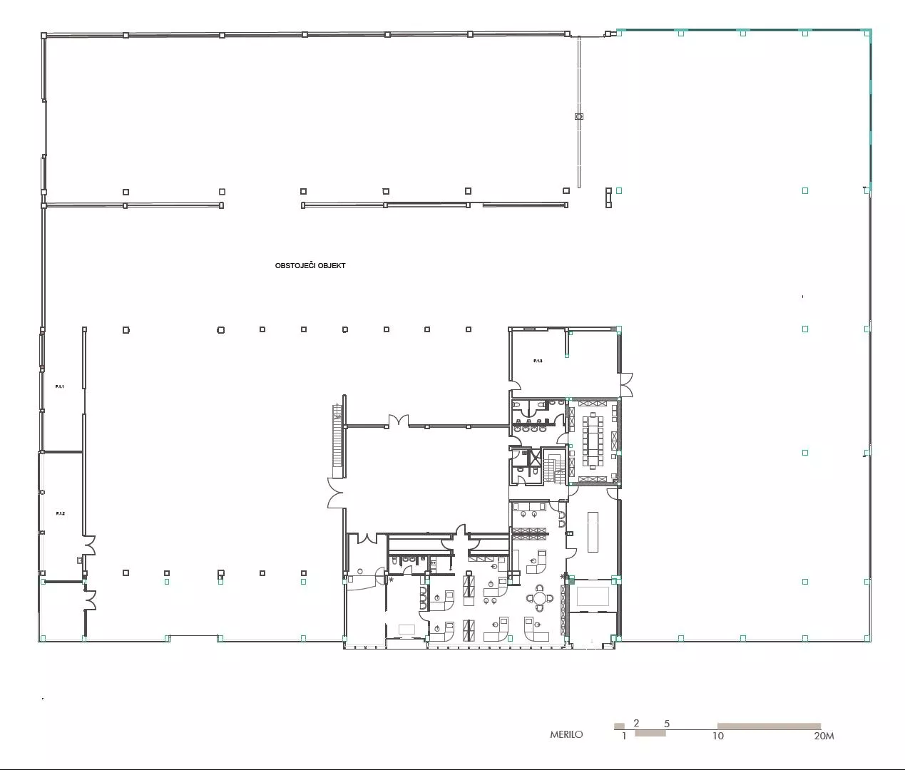
Steklarska delavnica Resnik
  • naročnik: Obdelava ravnega stekla, Miran Resnik s.p., Leskovec pri Krškem 
  • tip/namembnost: PROIZVODNO-UPRAVNI OBJEKT 
  • vrsta gradnje: adaptacija in dozidava 
  • lokacija: Leskovec pri Krškem površina: 2.090m2 (dozidava) + 300m2 (adaptacija) 
  • projekt: 2007 
  • izvedba: 2008
Datum izvedbe:
Steklarska delavnica Resnik
Steklarska delavnica Resnik
Steklarska delavnica Resnik

Stopite v stik