1. »
  2. »
  3. » Projekti
  4. » Interier

Hotel Primus Terme Ptuj

Nazaj

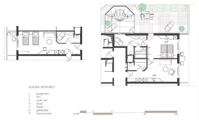
Hotel Primus Terme Ptuj - notranja oprema
  • naročnik: Terme Ptuj d.o.o.
  • tip/namembnost: HOTEL z vključenim bazenskim delom, wellnessom, savnami in kongresom
  • vrsta gradnje: novogradnja
  • lokacija: Ptuj
  • površina: 13.495 m2
  • projekt: 2005 – 2007
  • izvedba: 2007
Datum izvedbe:
Hotel Primus Terme Ptuj - notranja oprema
Hotel Primus Terme Ptuj - notranja oprema
Hotel Primus Terme Ptuj - notranja oprema
Hotel Primus Terme Ptuj - notranja oprema
Hotel Primus Terme Ptuj - notranja oprema
Hotel Primus Terme Ptuj - notranja oprema
Hotel Primus Terme Ptuj - notranja oprema
Hotel Primus Terme Ptuj - notranja oprema

Stopite v stik