1. »
  2. »
  3. » Projekti
  4. » Interier

Protokolarni prostor CKŽ 47

Nazaj

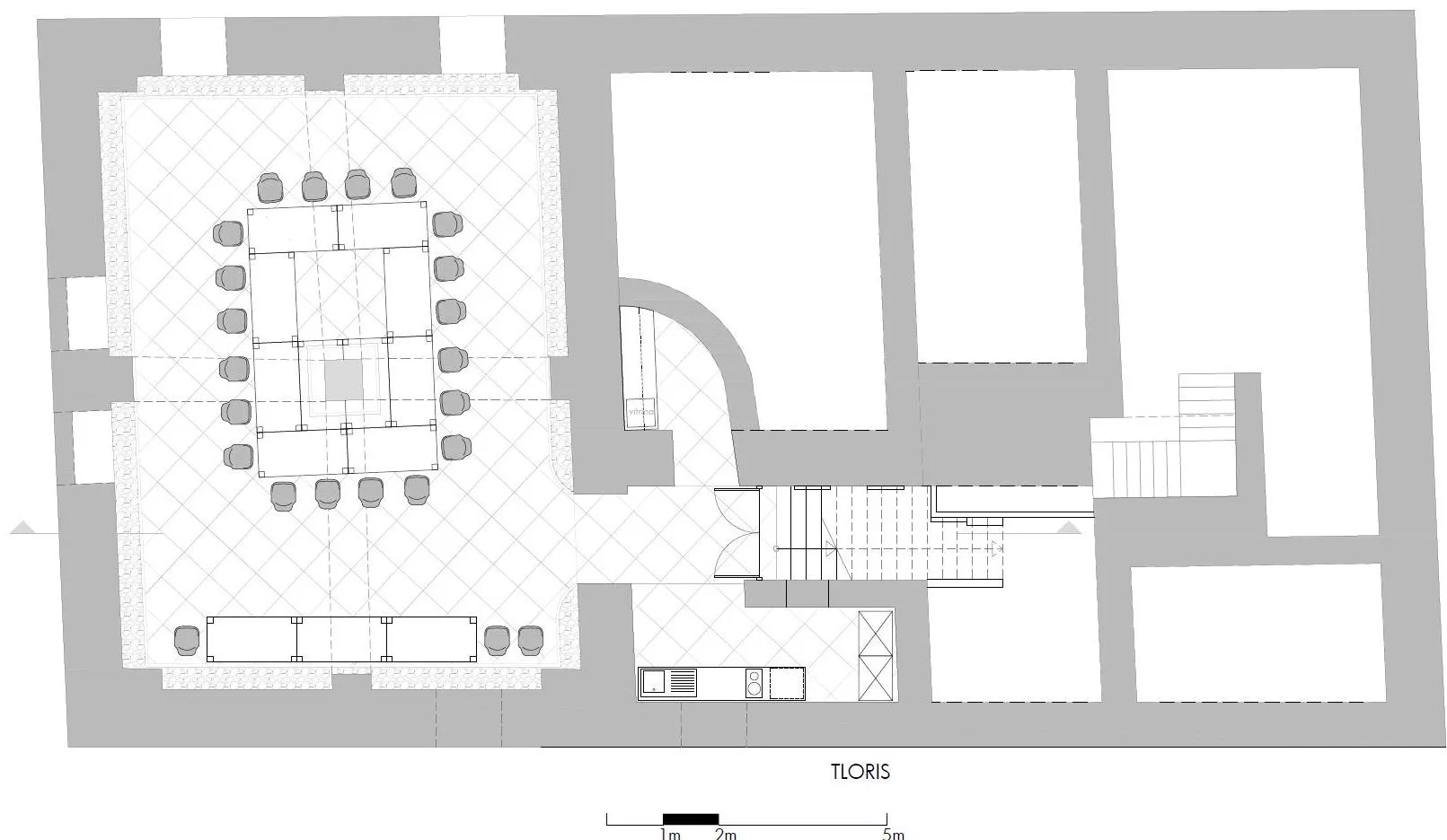
Protokolarni prostor CKŽ 47
  • naročnik: Kostak d.d. Krško
  • tip/namembnost: večnamenska soba
  • vrsta gradnje: prenova
  • lokacija: Krško
  • površina:175 m2
  • projekt: 2010 (idejna zasnova)
Datum izvedbe:
Protokolarni prostor CKŽ 47
Protokolarni prostor CKŽ 47
Protokolarni prostor CKŽ 47
Protokolarni prostor CKŽ 47
Protokolarni prostor CKŽ 47
Protokolarni prostor CKŽ 47
Protokolarni prostor CKŽ 47

Stopite v stik