1. » Projekti
  2. » Poslovne stavbe
  3. » Upravna stavba HESS

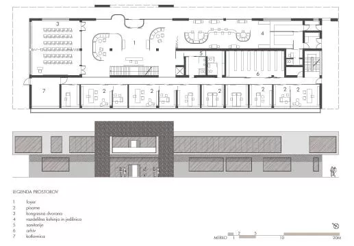
Upravna stavba HESS

Nazaj

Upravna stavba HESS
  • naročnik: HESS hidroelektrarne na spodnji Savi 
  • tip/namembnost: POSLOVNA STAVBA 
  • vrsta gradnje: novogradnja 
  • lokacija: Brežice 
  • površina: cca. 760 m2 
  • projekt: IDEJNA ZASNOVA 2011 
  • izvedba: /
Datum izvedbe:
Upravna stavba HESS
Upravna stavba HESS
Upravna stavba HESS
Upravna stavba HESS
Upravna stavba HESS

Stopite v stik