1. » Projekti
  2. » Šolske stavbe
  3. » RIC Elektronček in Čebelica

RIC Elektronček in Čebelica

Poslovni objekt Bohoričeva ulica 2 Krško

Nazaj

Šolske stavbe
  • naročnik: OBČINA Krško 
  • tip/namembnost: POSLOVNI OBJEKT 
  • vrsta gradnje: novogradnja 
  • lokacija: Krško, Šajspoh 
  • površina: cca. 80 m2 
  • projekt: IDZ, PGD
Datum izvedbe:
Lokacija: Krško
Naročnik: Občina Krško
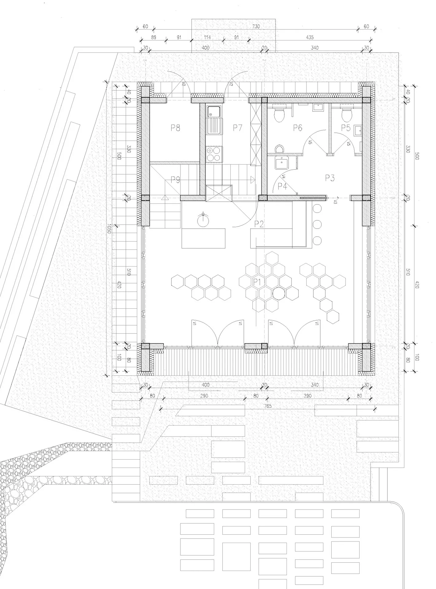
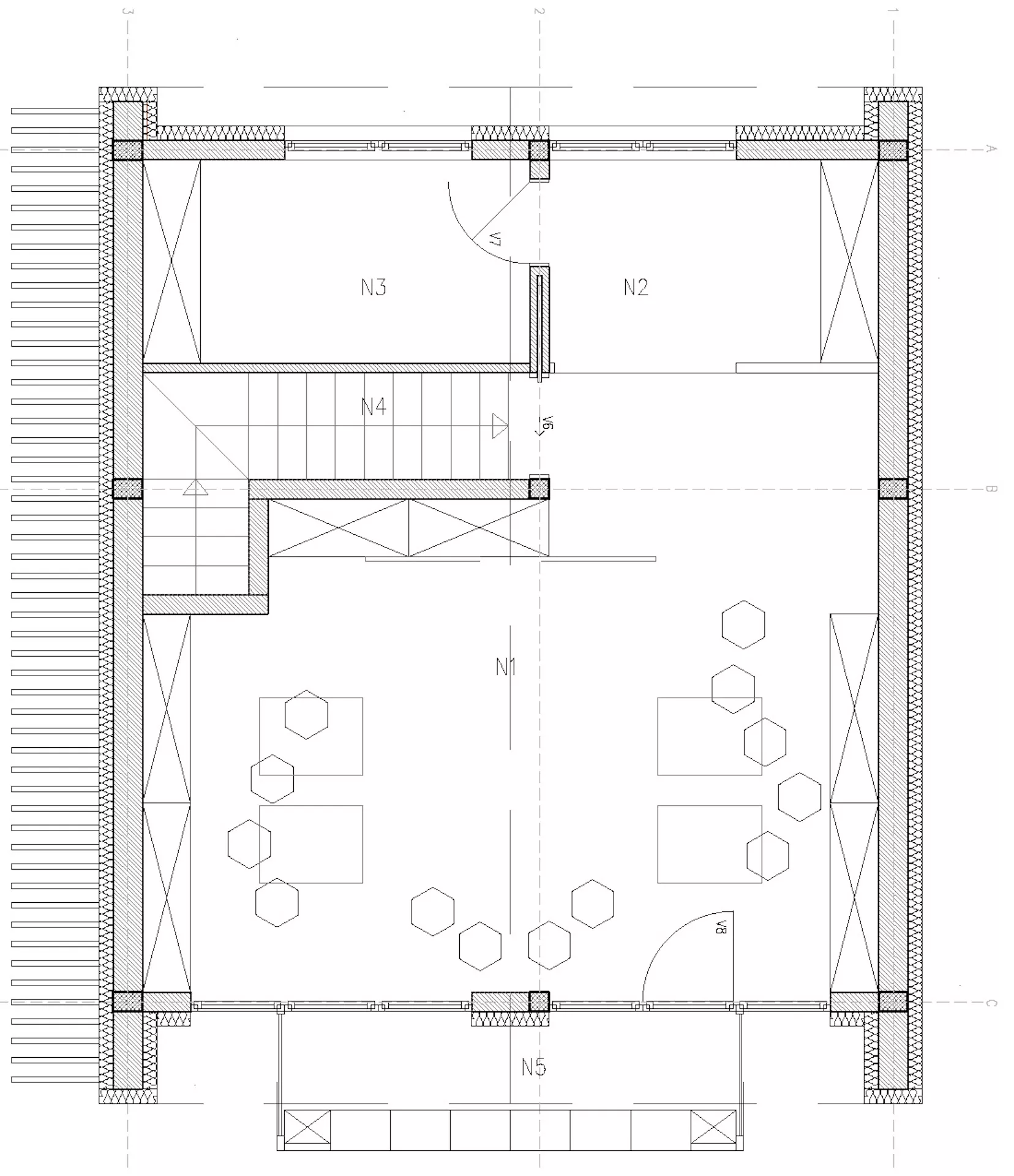
Poslovni objekt Bohoričeva ulica 2 Krško (RIC Elektronček in Čebelica)
Poslovni objekt Bohoričeva ulica 2 Krško (RIC Elektronček in Čebelica)
Poslovni objekt Bohoričeva ulica 2 Krško (RIC Elektronček in Čebelica)
Poslovni objekt Bohoričeva ulica 2 Krško (RIC Elektronček in Čebelica)
RIC Elektronček in Čebelica
RIC Elektronček in Čebelica
RIC Elektronček in Čebelica
RIC Elektronček in Čebelica

Stopite v stik