1. » Projekti
  2. » Stanovanjske stavbe
  3. » Stanovanjsko-poslovni objekt Arh

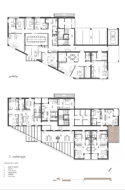
Stanovanjsko-poslovni objekt Arh

Nazaj

Stanovanjsko-poslovni objekt Arh
  • naročnik: Arh elektromehanika d.o.o., Leskovec pri Krškem
  • tip/namembnost: stanovanjsko poslovni objekt
  • vrsta gradnje: novogradnja
  • lokacija: Leskovec pri Krškem
  • površina: 1.150 m2
  • projekt: 2007
  • izvedba: 2008
Datum izvedbe:
Stanovanjsko-poslovni objekt Arh
Stanovanjsko-poslovni objekt Arh
Stanovanjsko-poslovni objekt Arh
Stanovanjsko-poslovni objekt Arh

Stopite v stik